Rakennussuunnittelu
Rakennussuunnittelussa tehdään rakentamista koskevat keskeiset päätökset, sekä suunnitellaan talon arkkitehtuuri, johon kuuluu mm. talon muoto, tilat, julkisivut, sekä rakennuksen sijoitus ympäristöönsä. Tässä vaiheessa lyödään myös lukkoon 90% rakennushankkeen kustannuksista. Rakennussuunnittelu onkin koko rakennushankkeen tärkeimpiä vaiheita ja siihen kannattaa varata riittävästi aikaa ennen varsinaista rakentamista.
Rakennussuunnittelu alkaa yleensä hanke- tai luonnossuunnitteluvaiheilla, joissa hahmotellaan tulevan talon ominaisuudet. Luonnossuunnittelun jälkeen laaditaan rakennuslupapiirustukset, sekä rakennuslupahakemus tarvittavine liitteineen. Osaavan suunnittelijan hoitama lupahakemus ja yhteydenpito rakennusvalvontaan varmistaa kohteelle sujuvan rakennuslupakäsittelyn. Lupasuunnittelun jälkeen tehdään tarvittavat työpiirustukset rakentamista varten.
Tarjoamme omakoti- ja pientalokohteiden rakennussuunnittelua ja rakennuslupapiirustusten tekoa asiakkaan haluamassa laajuudessa. Suunnittelu voidaan tehdä luonnostelemalla rakennettava kohde täysin puhtaalta pöydältä asiakkaan toiveiden ja tontin ehtojen mukaisesti, tai esimerkiksi jalostamalla lupakuvat ja työpiirustukset jo olemassa olevien luonnosten pohjalta.
Teemme rakennussuunnittelun ArchiCAD 3D-tietomallinnusohjelmistolla. 3D-tietomallinnuksen avulla saavutetaan suunnittelussa huomattavasti perinteistä 2D-suunnittelua laadukkaampi lopputulos. Lisäksi 3D-mallinnetun suunnitelman visualisoinnit antavat asiakkaalle havainnollisen kuvan uudesta kodista jo aikaisessa luonnosvaiheessa.
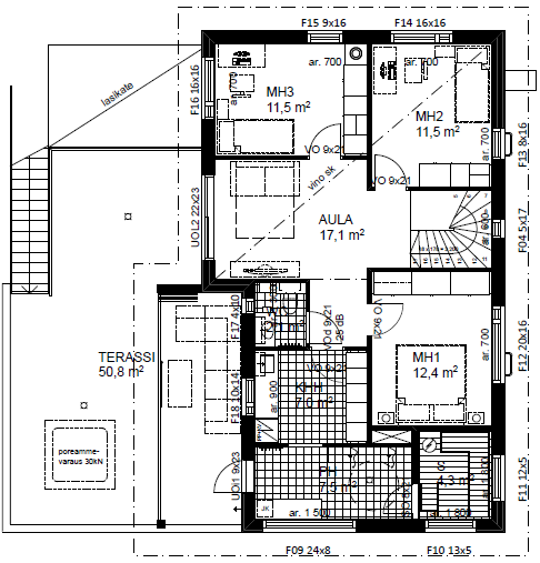
Esimerkki rakennussuunnittelun tehtäväsisällöstä:
1. vaihe: Luonnossuunnitelmat
Asemapiirros
Pohjapiirustukset
Julkisivut
3D-havainnekuvat
Tarjouspyyntöasiakirjat kohteessa sovitussa laajuudessa
2. vaihe: Pääpiirustukset (rakennuslupakuvat)
Asemapiirros
Pohjapiirustukset
Julkisivut
Leikkaukset
Rakennuslupahakemus ja yhteydenpito rakennusvalvontaan
3. vaihe: Työpiirustukset
Mitoitetut työpiirustukset rakentamista varten
Kaaviot, työselostukset, yms. kohteessa sovitussa laajuudessa
